Das gepflegte Mehrfamilienhaus wurde 1968 auf einem 771 m² großen Grundstück im Ortskern von Gröbenzell errichtet.
Es ist in acht gut geschnittene, helle Wohnungen aufgeteilt und voll unterkellert. Sieben der acht Wohnungen sind derzeit vermietet, und bemerkenswert ist die außergewöhnlich harmonische Hausgemeinschaft.
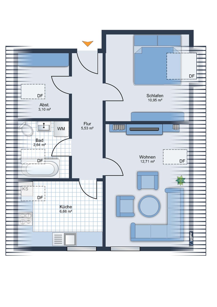
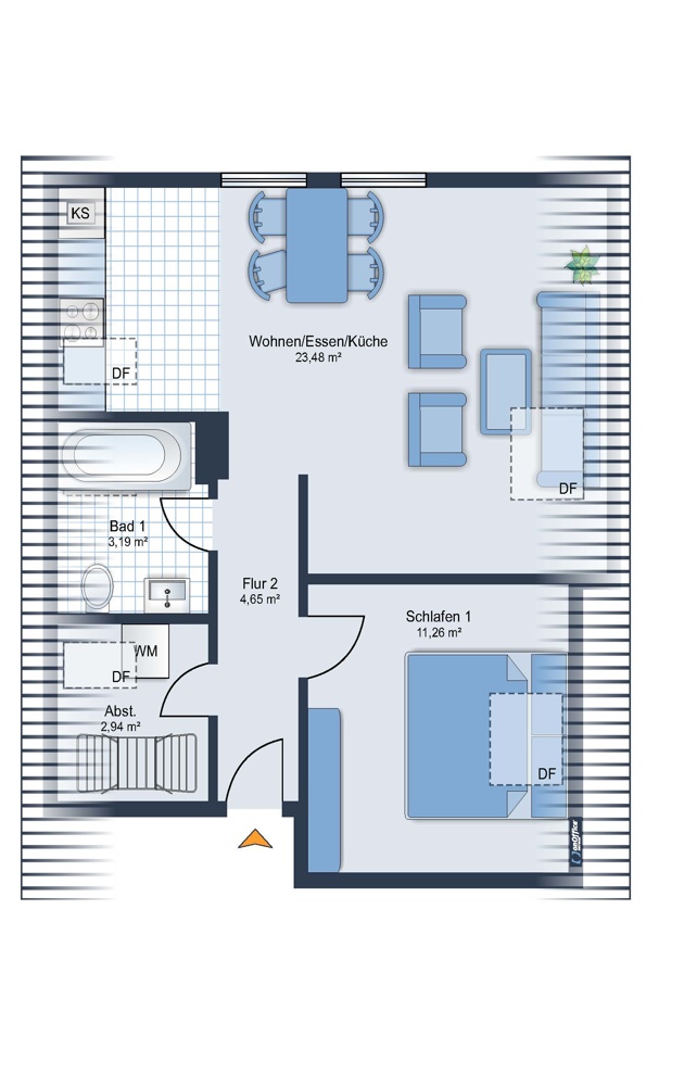
Die Grundrissstruktur ist klar und attraktiv: Im Hochparterre, in den zwei Obergeschossen und im Dachgeschoss befinden sich jeweils zwei Wohneinheiten. Die Drei-Zimmer-Wohnungen bis zum 2. Obergeschoss verfügen über einen nach Süden ausgerichteten Balkon. Im Dachgeschoss erwarten Sie zwei gemütliche 2-Zimmer-Wohnungen, jeweils mit praktischem Abstellraum.
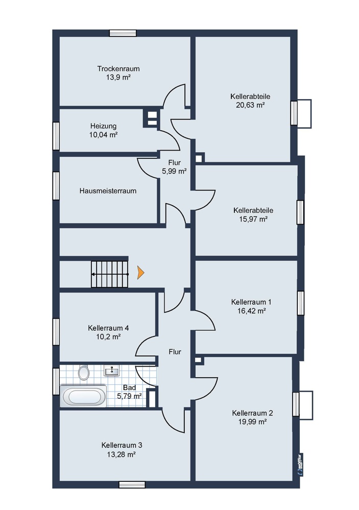
Ein Wäschetrockenraum sowie die Abstellkeller der Mieter befinden sich im Untergeschoss. Vier weitere großzügige Kellerräume sowie ein Bad, die früher als Gemeinschaftsräume genutzt wurden, stehen derzeit leer.
Vier Garagen und vier Stellplätze sowie ein Fahrradschuppen stehen im Innenhof des Hauses den Mietern zur Verfügung. Eine Grünfläche vor dem Haus kann von den Mietern genutzt werden.




