Dieses Reihenmittelhaus wurde 1971 in solider Massivbauweise errichtet und verfügt über drei Geschosse sowie ein Untergeschoss. Im Jahr 2020 wurde die Immobilie umfassend modernisiert und befindet sich in einem entsprechend gepflegten, zeitgemäßen Zustand.
Im Erdgeschoss befinden sich ein Gäste-WC, eine Küche und ein großzügiges Wohnzimmer mit Zugang zur überdachten Südwest-Terrasse und dem Garten. Die Terrasse ist seitlich verglast und mit einem Glasdach samt integrierter Markise ausgestattet. Zudem stehen Strom- und Wasseranschluss zur Verfügung. Eine gemütliche Sitzecke lädt zum Verweilen ein und macht den Außenbereich besonders attraktiv.
Das Obergeschoss umfasst drei Schlafzimmer sowie ein Badezimmer. Zwei der Schlafzimmer bieten direkten Zugang zum Südwest-Balkon.
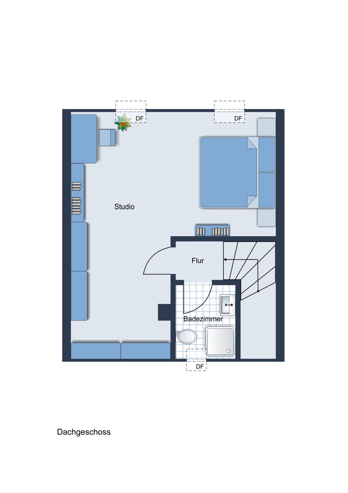
Im Dachgeschoss befindet sich ein geräumiges Studio mit eigenem Badezimmer, das sich ideal als Gästezimmer oder Büro eignet.
Das Untergeschoss bietet neben praktischem Stauraum einen Hobbyraum, einen Heizraum, einen Hauswirtschaftsraum, einen Lagerraum sowie einen Einbauschrank im Flurbereich.
Zusätzlich gehört eine Garage mit Stromanschluss zum Haus, die eine bequeme Parkmöglichkeit bietet.
Das Haus ist real geteilt, die Zufahrt sowie der Garagenhof gehören zum Gemeinschaftseigentum.




