Das charmante Landhaus aus dem Jahr 1955 wurde vollständig und mit viel Liebe zum Detail saniert und präsentiert sich heute technisch wie optisch in herausragendem Zustand. Eingebettet in ein rund 800 m² großes, eingewachsenes Grundstück bietet Ihnen dieses besondere Zuhause Ruhe und einen unverwechselbaren Charakter.
Über wenige Stufen erreichen Sie den einladenden Hauseingang. Im Erdgeschoss erwartet Sie ein offener, lichtdurchfluteter Wohn-Ess-Bereich mit angrenzender Küche. Ergänzt wird die Ebene durch ein helles Arbeitszimmer sowie ein Gäste-WC.
Die geschmackvolle Einbauküche ist hochwertig ausgestattet – unter anderem mit einem neuen Gasherd, sämtlichen Elektrogeräten sowie einer praktischen Speisekammer/Abstellkammer.
Vom Wohn- und Essbereich aus gelangen Sie direkt in den Garten mit zwei Terrassen: einer überdachten Südterrasse sowie einer sonnigen Westterrasse.
Im Obergeschoss empfängt Sie ein gemütliches Schlafzimmer mit angeschlossener Ankleide, ausgestattet mit hochwertigen Einbauten. Das moderne Designerbad überzeugt mit einer großzügigen, ebenerdigen Dusche und einer geschmackvollen Ausstattung.
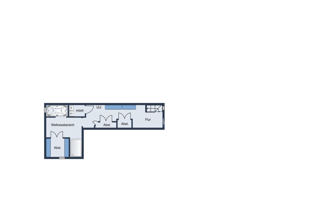
Das Haus ist nur teilweise unterkellert – dennoch wurde hier ein kleiner, sehr ansprechender Wellnessbereich geschaffen, ausgestattet mit einer Dusche und einer Whirlpoolwanne.
Ein Abstellraum sowie Platz für Waschmaschine und Trockner stehen ebenfalls zur Verfügung.
Ein zusätzliches Highlight ist das separate Nebengebäude mit zwei beheizten Räumen, beide ausgestattet mit elektrischer Fußbodenheizung. Diese eignen sich hervorragend als Arbeitszimmer, Hobby- oder Gästezimmer – flexibel nutzbar ganz nach Ihren Bedürfnissen.
Komplettiert wird das Angebot durch eine Garage mit Wallbox.
Das ansprechende Haus ist ein Liebhaberobjekt, perfekt für max. drei Personen, die ein stilvolles Zuhause suchen und Freude an der Pflege des schönen Gartens haben.




