Dieses kleine, liebevoll gepflegte Einfamilienhaus aus dem Jahr 1960 wurde in massiver Ziegelbauweise errichtet und ab 2020 umfassend modernisiert. Es ist ideal für Paare oder eine kleine Familie geeignet.
Im Erdgeschoss erwarten Sie ein gemütliches Wohnzimmer mit Zugang zur südlich ausgerichteten Terrasse mit elektrischer Markise, ein Esszimmer mit Kaminofen, eine separate Küche sowie ein modernisiertes Bad. Der angrenzende Anbau schafft zusätzlichen Raum für Hobby und Homeoffice und ist komfortabel mit einer Fußbodenheizung ausgestattet.
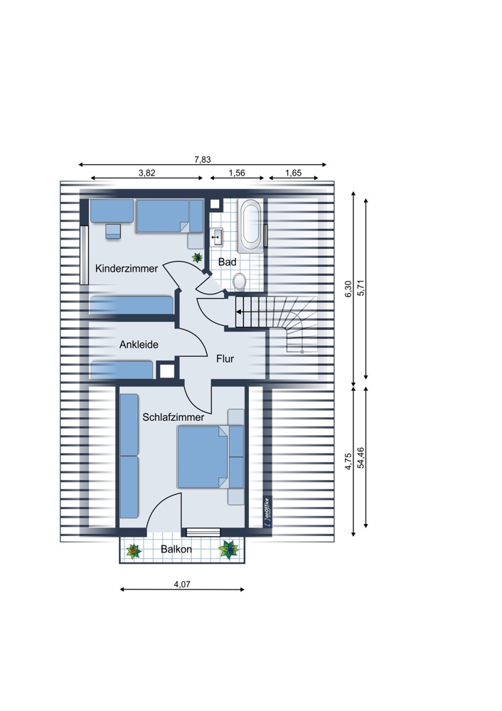
Im Dachgeschoss befinden sich das Schlafzimmer mit Südbalkon, ein Kinderzimmer, eine praktische Ankleide sowie ein weiteres Bad.
Im Untergeschoss ist die Haustechnik untergebracht, zudem steht hier ausreichend Platz für Waschmaschine und Trockner zur Verfügung.
Das Haus verfügt über einen Doppelcarport mit Abstellraum, einen zusätzlichen Stellplatz und zwei Terrassen mit elektrischer Markise, die nach Süden und Osten ausgerichtet sind.
Für alle, die ein gemütliches und individuelles Zuhause mit viel Wohlfühlatmosphäre suchen, ist dieses Haus die perfekte Wahl.




